Projet de construction d'une maison 117 m² avec terrain à LANDUDAL (29)
Modèle présenté
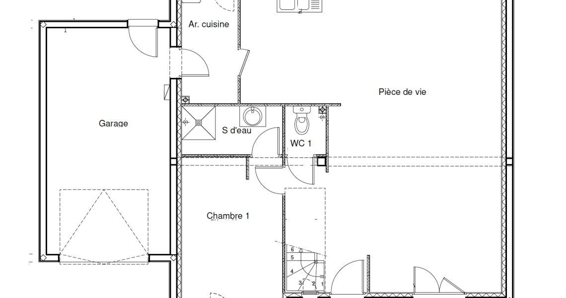
- Nom : DC1-410-GA-4CH117
- Surface : 117 m2
- Nb pièces : 5 pièces
- Nb chambres 4 chambres
Résumé terrain
- 29510 LANDUDAL
FINISTERE (29) - Surface : 1883 m2
- En lotissement : non
Projet de construction d'une maison 117 m² avec terrain à LANDUDAL (29)
A LANDUDAL sur un terrain de 1883 m², MAISONS I QUIMPER vous propose de réaliser cette maison neuve d'une surface de 117 m² habitables avec 4 chambres.MAISONS I QUIMPER vous propose la finition "i" avec les prestations suivantes :
- Raccordement eau-élec-TAE
- Chemin d’accès
- Pourtour en gravillon
- Menuiseries tout ALU OB en gris RAL 7016/blanc avec volets roulants élec centralisée
- Porte d’entrée ALU
- Porte de garage sectionnelle motorisée
- Plancher chauffant par pompe à chaleur AIR-EAU
- Double vasque/simple vasque avec Miroir anti-buée à LED
- Baignoire avec appui-tête
- WC suspendu
- Receveur de douche extra plat 90*120 cm avec robinetterie design, ciel de pluie avec douchette
- Faïences 90*30 dans l’espace douche et baignoire du sol au plafond
- Sol rigide pour les chambres fourni non posé
- Peinture blanche 2 couches fourni non posée pour toute la maison
- Carrelage 60/60cm ou imitation parquet 20/80cm fourni/posé
- Escalier (selon modèle) bois et métal avec/sans contre marche
- Porte intérieure prépeinte
- Gouttières ALU
- Assurance dommage et ouvrage
- Construction conforme à la nouvelle RE 2020
Informations du terrain : Vous souhaitez construire VOTRE maison idéale sur le secteur Quimpérois à 5 minutes de Briec et 10 minutes d'Ergué Gabéric ? Ce terrain n'attend que vous... Avec son accès rapide Quimper nord, ce beau terrain bien exposé profite de sa situation dans le bourg de Landudal avec ses commerces de proximité et son école à pieds. Viabilisation à prévoir et possibilité de diviser en deux lots.
Demandez une étude gratuite et personnalisée de votre projet de construction !
Contactez Stella LEMAT au 02 98 11 79 46 (Maisons i 29 - Agence de Pluguffan).
Prix avec assurance dommages-ouvrage comprise, raccordement eau, électricité et tout à l'égout compris, chemin d’accès compris, pourtour en gravillon compris, terrain non viabilisé, assainissement non compris, adaptation non comprise, frais de notaire non compris, taxes non comprises, frais divers non compris. Les finitions sont à prix coûtant. Terrain sélectionné et vu pour vous sous réserve de disponibilité et au prix indiqué par notre partenaire foncier. Conditions et visuels non contractuels.
Plus d'informations
Vous souhaitez construire VOTRE maison idéale sur le secteur Quimpérois à 5 minutes de Briec et 10 minutes d'Ergué Gabéric ? Ce terrain n'attend que vous... Avec son accès rapide Quimper nord, ce beau terrain bien exposé profite de sa situation dans le bourg de Landudal avec ses commerces de proximité et son école à pieds. Viabilisation à prévoir et possibilité de diviser en deux lots.







