Maison individuelle DC-401-GI
Résumé du modèle
- Nom : DC-401-GI
- Nb versions : 1
- Surface : 101 m2
- Nb chambres 4 chambres
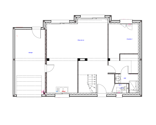
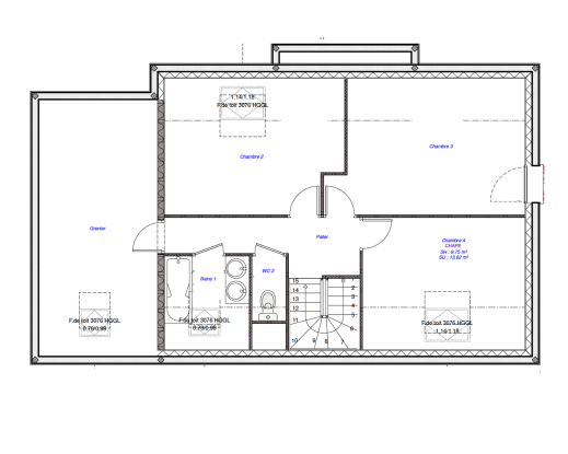
Votre maison DC-401-GI
Découvrez notre modèle de maison DC-401-GI, idéal pour ceux qui aspirent à un espace de vie sur-mesure. Ce design vous propose une superficie de 101 m², comprenant 5 pièces dont 4 chambres, vous offrant ainsi une grande flexibilité pour l'agencement de votre intérieur. Entièrement personnalisable, notre modèle vous permet de choisir les configurations et les finitions selon vos préférences pour créer un environnement qui vous ressemble. Que vous souhaitiez un bureau supplémentaire, une salle de jeux pour les enfants, ou un espace ouvert pour recevoir vos amis, tout est réalisable. Faites de cette maison le reflet de votre personnalité et de votre style de vie unique.


















