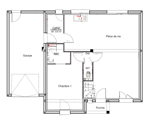
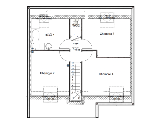
Maison individuelle DC2-400-GA
Résumé du modèle
- Nom : DC2-400-GA
- Nb versions : 1
- Surface : 100 m2
- Nb chambres 4 chambres
Votre maison DC2-400-GA
Découvrez notre modèle de maison DC2-400-GA, idéal pour ceux qui aspirent à un espace de vie sur-mesure. Ce design vous propose une superficie de 100 m², comprenant 5 pièces dont 4 chambres, vous offrant ainsi une grande flexibilité pour l'agencement de votre intérieur. Entièrement personnalisable, notre modèle vous permet de choisir les configurations et les finitions selon vos préférences pour créer un environnement qui vous ressemble. Que vous souhaitiez un bureau supplémentaire, une salle de jeux pour les enfants, ou un espace ouvert pour recevoir vos amis, tout est réalisable. Faites de cette maison le reflet de votre personnalité et de votre style de vie unique.
















