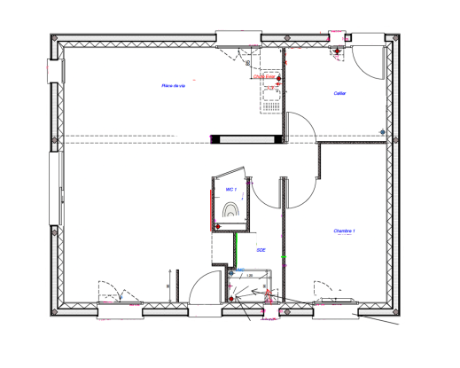
Maison individuelle RP2P-160-SG
Résumé du modèle
- Nom : RP2P-160-SG
- Nb versions : 1
- Surface : 60 m2
- Nb chambres 1 chambres
Votre maison RP2P-160-SG
Découvrez notre modèle de maison RP2P-160-SG, idéal pour ceux qui aspirent à un espace de vie sur-mesure. Ce design vous propose une superficie de 60 m², comprenant 2 pièces dont 1 chambres, vous offrant ainsi une grande flexibilité pour l'agencement de votre intérieur. Entièrement personnalisable, notre modèle vous permet de choisir les configurations et les finitions selon vos préférences pour créer un environnement qui vous ressemble. Que vous souhaitiez un bureau supplémentaire, une salle de jeux pour les enfants, ou un espace ouvert pour recevoir vos amis, tout est réalisable. Faites de cette maison le reflet de votre personnalité et de votre style de vie unique.















